Vivienda unifamiliar aislada

Habitatge unifamiliar aïllat en sòl rustic / Detached family house in rural land / Maison familiale indépendante

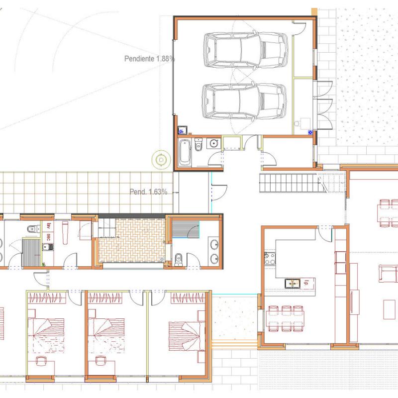
Benicarló, 2009

 

Esta vivienda esta situada en el campo , rodeado de invernaderos y paisajes de flores de los propietarios. Se orienta a Sur-Este para aprovechar las vistas del mar y el asoleamiento favorable y se cierra a la orientación oeste y Nor-oeste, de vientos y vistas poco favorables. Programa funcional dividido formalmente en zona de día y de noche
 
Aquest habitatge està situada al camp, envoltat d'hivernacles i paisatges de flors dels propietaris. S'orienta a Sud-Est per aprofitar les vistes de la mar i el assolellament favorable i es tanca a l'orientació oest i nord-oest, de vents i vistes poc favorables. Programa funcional dividit formalment en zona de dia i de nit
 
This house is located in the countryside, surrounded by greenhouses and flower landscapes of the owners. It is oriented to the South-East to take advantage of the views of the sea and favorable sunlight and it is closed to the west and North-west orientation, with unfavorable winds and views. Functional program formally divided into day and night zones
 
Cette maison est située à la campagne, entourée de serres et de paysages fleuris des propriétaires. Il est orienté au sud-est pour profiter de la vue sur la mer et de la lumière solaire favorable et il est fermé à l'orientation ouest et nord-ouest, avec des vents et des vues défavorables. Programme fonctionnel officiellement divisé en zones jour et nuit
 
 

Please publish modules in offcanvas position.

We use cookies

We use cookies on our website. Some of them are essential for the operation of the site, while others help us to improve this site and the user experience (tracking cookies). You can decide for yourself whether you want to allow cookies or not. Please note that if you reject them, you may not be able to use all the functionalities of the site.